Interior view of a modern shopping mall with natural sunlight casting shadows through architectural details, displaying an arched ceiling, art displays, and a spacious walkway.

“facades”

drawn to fit

built to comply

designed to succeed

trusted by

  • A logo with a stylized hexagon and check mark in blue and gray text reading 'aps'.
  • Minesco logo in black with a modern, striped design.
  • BlueScope logo with blue abstract wavy lines and the word "BlueScope" in blue text underneath.
  • Cladding Systems logo with the tagline 'Experience Matters' in black text.
  • YISAGHT blue logo with a swoosh underneath on a white background.

Our Services

Colored 3D CAD model of a mechanical or engineering system with various components such as panels, brackets, and structural elements in shades of blue, orange, green, pink, gray, and white.

design development

At Design Elevations, we specialize in creating facade designs that comply with Australian standards, ensuring quality and safety in every project. Our primary focus on buildability and prefabrication streamlines the construction process, significantly reducing time on site. This efficient approach not only enhances productivity but also delivers outstanding results that meet the needs of modern architecture.

A detailed architectural building plan for 111 Bourke Street, Melbourne, showing sections, measurements, and construction notes.

shop drawings

Our shop drawings are meticulously prepared in accordance with Australian standards, ensuring precision and compliance for all your projects. With a proven track record, our work has been approved by numerous tier 1 projects across Australia, showcasing our commitment to quality and excellence in design execution. Trust us to deliver comprehensive and reliable shop drawings that meet the highest industry benchmarks.

Technical engineering drawing of a metal component with detailed measurements, sectional views, and annotations.

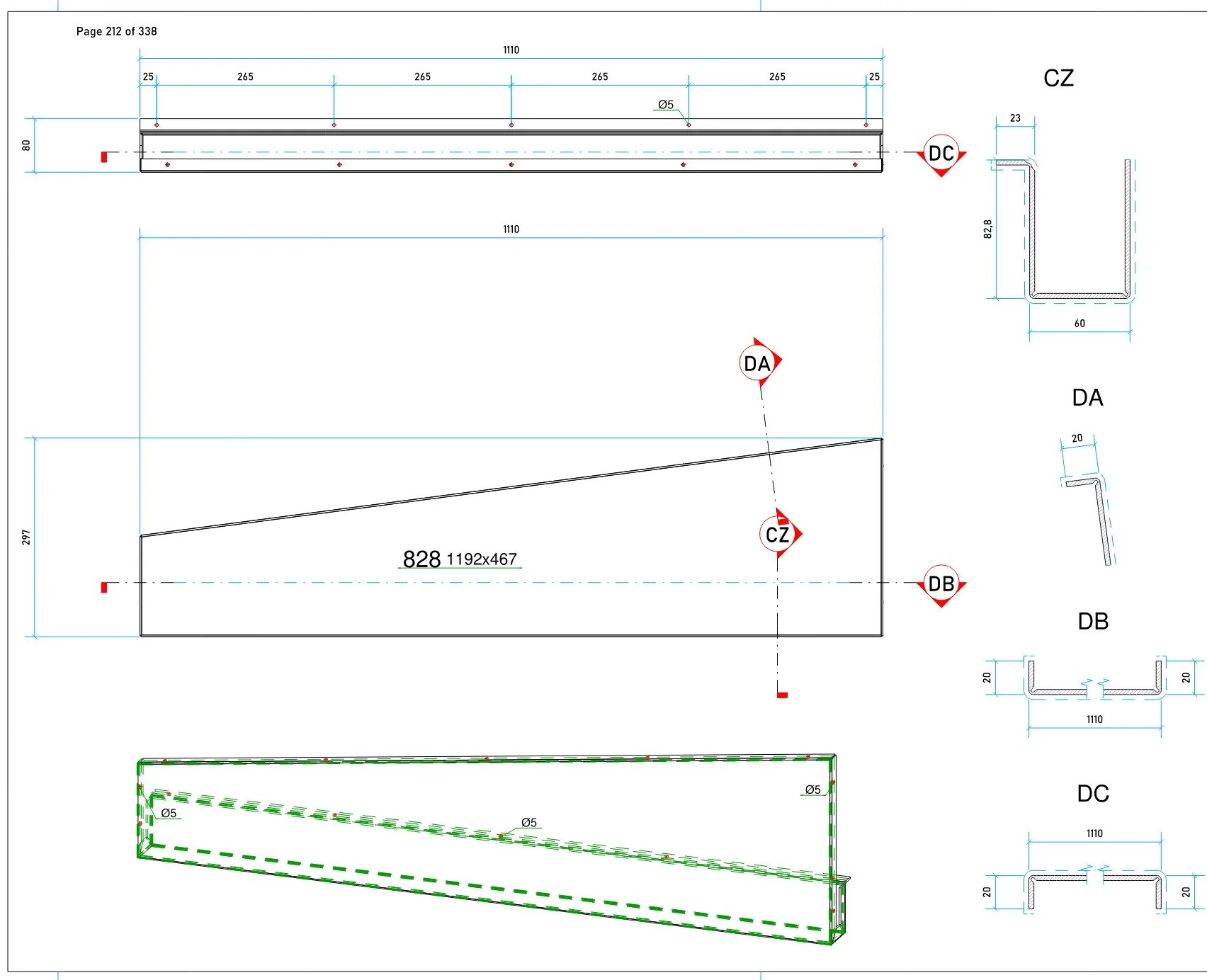
fabrication drawings

Fabrication drawings we provide are detailed representations that reflect the approved shop drawings, serving as essential guides for the manufacturing process. By providing precise measurements, material specifications, and assembly instructions, these drawings significantly reduce the time spent on the factory floor and during on-site installation. This clear documentation streamlines production workflows, minimises errors, and ensures that components are manufactured to the exact standards required, ultimately leading to more efficient project timelines and improved overall quality.

Book an appointment

Please reach out using the form below or send us an email, and we will respond promptly.

Computer monitor displaying a 3D model of industrial scaffolding or structural framework.

Over Two Decades of Facade Excellence

Design Elevations Consulting & Drafting Pty Ltd builds on a legacy of façade excellence dating back to 2004. With global experience across four continents, we deliver innovative and sustainable solutions for Australia’s Tier 1 projects. Our team combines technical precision with creative vision, crafting façades that reflect quality, craftsmanship, and client satisfaction. From concept to completion, we turn ideas into architectural statements that inspire and endure—explore our portfolio and join us in shaping the future of design.

Low angle view of a tall modern building with glass and steel exterior, scaffolding at the bottom, and a cloudy sky in the background.

Contact Us

Interested in working together? Fill out some info and we will be in touch shortly. We can’t wait to hear from you!